Conyngham Street Depot Master Plan
The Master Plan concept
On Tuesday 22 May 2018 Council approved the Conyngham Street Depot Master Plan for the purposes of commencing construction in 2018/19.
This exciting new facility will redevelop an underutilised asset to integrate a variety of educational and intergenerational opportunities and social inclusion programs in a vibrant “hub-like” setting.
Construction is expected to start in 2018/19 and be completed the following financial year.
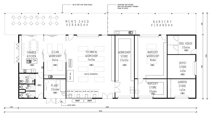
The improved Conyngham Street site will include a new Men’s Shed, Biodiversity Conservation Nursery, and Community Garden, as well as a reconfigured Council Depot.
The site will incorporate environmentally sustainable features, particularly in relation to water and energy use. Off-street car parking for site users will also be provided.

The proposed new building includes various workshops toilet facilities and storage.

More detail on what will be constructed can be seen in the Conyngham Street Depot Redevelopment document below.
For more information
A Frequently Asked Questions (FAQ) sheet can be downloaded from the link below.
For more information on the project contact Council’s Strategic Projects Manager, Aaron Schroeder, on 8366 4125 or aschroeder@burnside.sa.gov.au
For more information or to be involved in the future programs at the site contact Council's Group Manager Community Connections, Farlie Taylor, on 8366 4143 or ftaylor@burnside.sa.gov.au